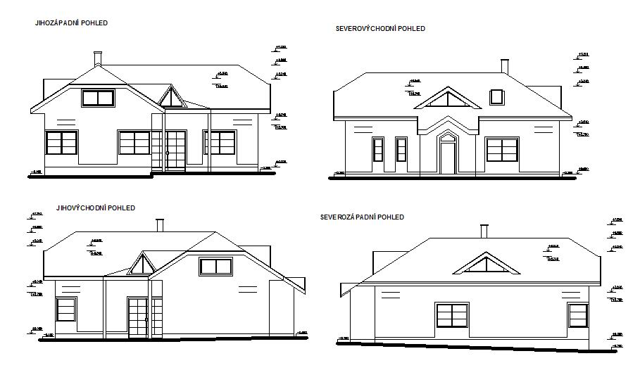
Rodinný dům Stará Ves nad Ondřejnicí
Klasický dvoupodlažní rodinný dům o velikosti cca 145 m2 zastavěné plochy s technickým přístavkem.
Zpracování projektové dokumentace rodinného domu pro územní a stavební řízení.
Plánujete novostavbu rodinného domu, obytného domu, rekreačního objektu, garáže či jejich rekonstrukce? Máte individuální požadavky? Chcete mít osobní přístup řešící Vaše sny a představy o bydlení za příznovou cenu? Pak neváhejte a kontaktujte nás pro bližší informace nebo si domluvte nezávaznou schůzku.
Alšovo náměstí 688/7
Ostrava - Poruba
708 00
Klasický dvoupodlažní rodinný dům o velikosti cca 145 m2 zastavěné plochy s technickým přístavkem.
Zpracování projektové dokumentace rodinného domu pro územní a stavební řízení.