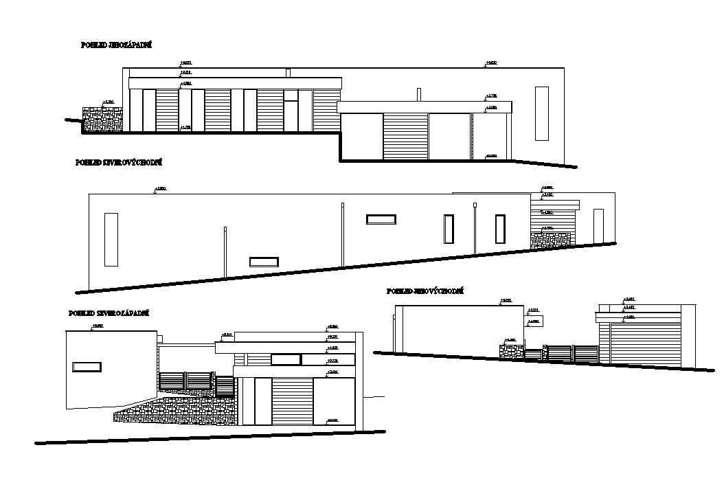
Rodinný dům Ostrava Plesná
Moderní jednopodlažní dům o velikosti cca 170m2, reagující na svažitost pozemku a samostatná garáž.
Zpracování jednostupňové projektové dokumentace pro stavební povolení a realizaci stavby. Dokumentace byla zpracována na základě původní návrhu a dokumentace zpracované arch. Johanisovými.




